Stegreif | 'Adlerhorst'
Sommer 2022 | ab 6. Fachsemester
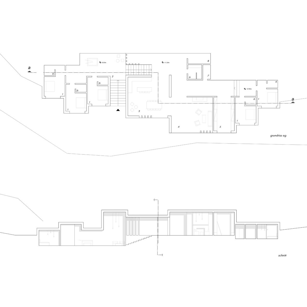
In den Hochalpen oberhalb der Baumgrenze befindet sich der spektakuläre Bauplatz für ein besonderes Refugium, ein Ort der Kontemplation, der Kommunikation und der Ruhe. Gefordert ist der Entwurf einer 'Alpen Lodge', welcher der besonderen und dramatischen Lage kurz unterhalb des Gipfels eines „Dreitausenders“ Rechnung trägt. Die Baustruktur klammert, hängt und nistet sich in und an die schroffe Felsstruktur.
Ausblick, Durchblick und spektakuläre Setzung an steilem Felshang sind der Rahmen und die Inspiration für den Entwurf. Als Baumaterial für die Primärkonstruktion sind Beton, Stahl oder Holz denkbar.







