Entwurfsprojekt | Sehnsuchtsort Einfamilienhaus
Winter 2021/22 | 5.-7. Fachsemester
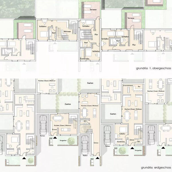
Das Entwurfsprojekt befasst sich mit der Fragestellung, wie sich die Qualitäten von ‚Einfamilienhäusern‘ auf flächen- und ressourcensparende Weise neu interpretieren lassen. Hintergrund ist die Auslobung des BDA Hamburg Studienpreises 2021/22.








