Bachelorthesis | Zentrum für Zukunft
Sommer 2021 | 8. Fachsemester
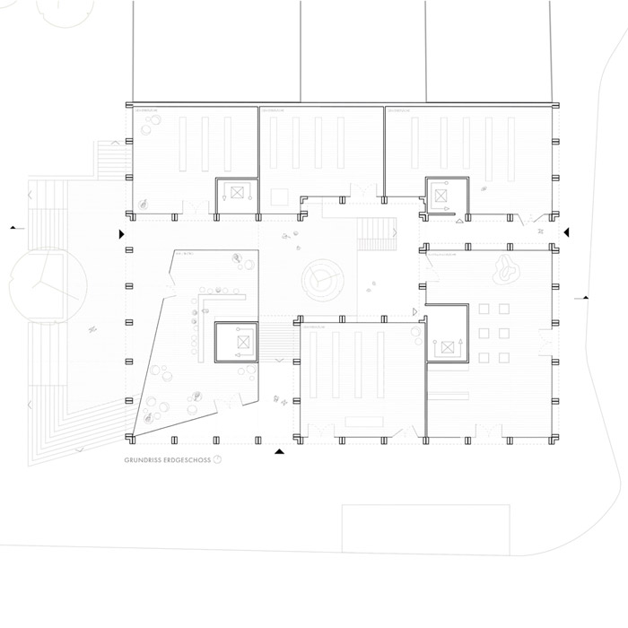
Revitalisierung und Umnutzung eines ehemaligen Einkaufsgebäudes gegenüber des Hamburger Hauptbahnhofes am Eingang zu einer innerstädtischen Einkaufsstraße
Bachelorthesis | Zentrum für Zukunft
Sommer 2021 | 8. Fachsemester
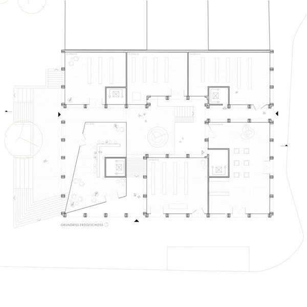
Revitalisierung und Umnutzung eines ehemaligen Einkaufsgebäudes gegenüber des Hamburger Hauptbahnhofes am Eingang zu einer innerstädtischen Einkaufsstraße