Bachelorthesis | Neue Synagoge
Sommer 2021 | 8. Fachsemester
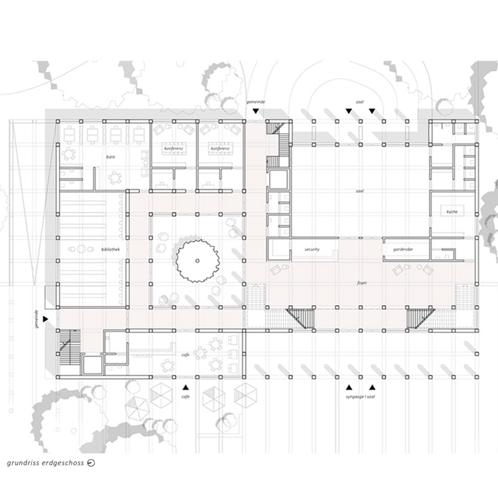
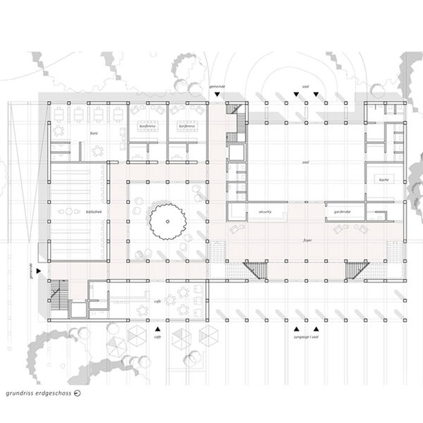
Entwurf einer Synagoge als neues jüdisches Zentrum im Hamburger Grindelviertel in direkter Nachbarschaft zur Talmud-Tora-Schule
Bachelorthesis | Neue Synagoge
Sommer 2021 | 8. Fachsemester
Entwurf einer Synagoge als neues jüdisches Zentrum im Hamburger Grindelviertel in direkter Nachbarschaft zur Talmud-Tora-Schule