Stegreif | 'Ein schönes Haus'
Sommer 2021 | ab 6. Fachsemester
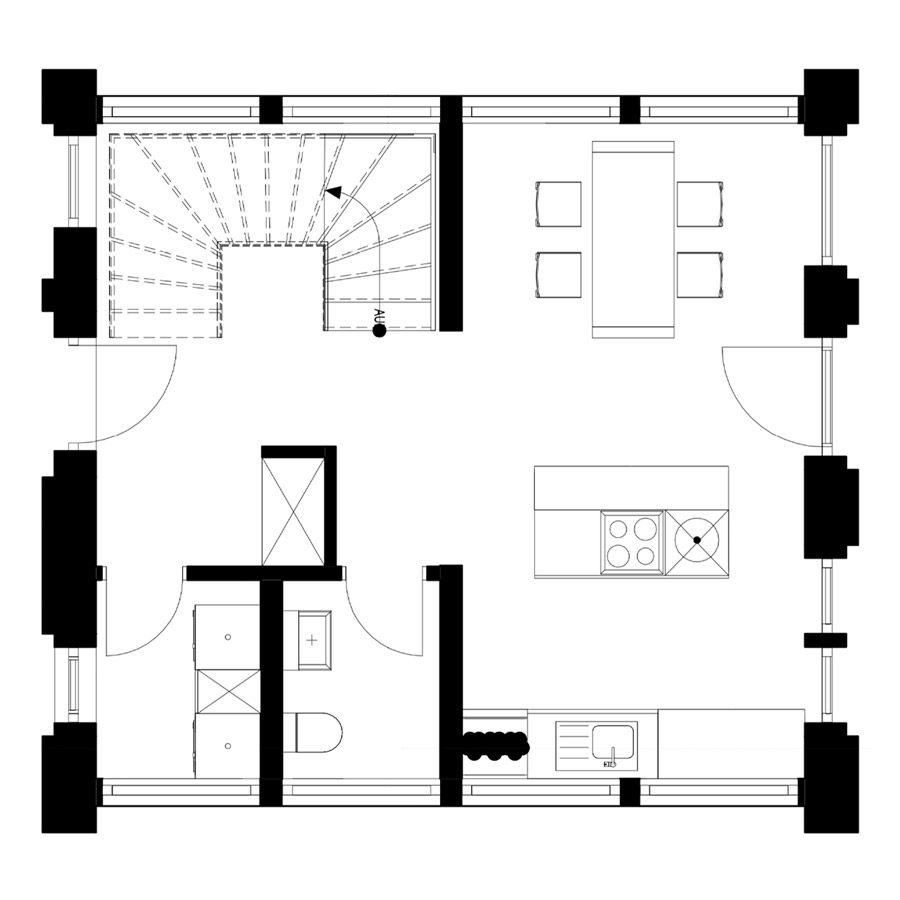
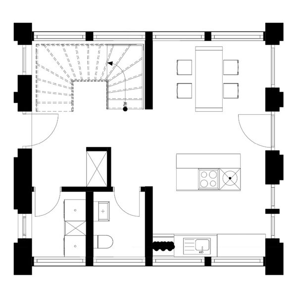
Spätestens seit Marc-Antoine Laugiers „Essai sur l‘architecture“ (1755) bildet die Urhütte eine wesentliche Referenz in der Architekturtheorie und ihrer gebauten Praxis. Die ihr entsprechende volumetrische Figur ist im Eigenheimbau nach wie vor aktuell, allerdings vielfach zum eintönigen Muster degeneriert und wird daher oft mit kreativer Armut und mangelnder räumlicher Qualität gleichgesetzt. Eine architektonische „Rehabilitierung“ scheint mehr als überfällig. Mittels plastischer Bearbeitung, räumlicher Inszenierung, Gestaltung von Oberfläche und Relief soll ein eigener Phänotyp (Erscheinungsform) entworfen werden. Auf einer Grundfläche von 7,50 m x 7,50 m soll ein freies Minimalprogramm (Café, Ausstellung, Ferienhaus, etc.) integriert werden. Entscheidend ist jedoch die Präsentation eines eigenen räumlichen, konzeptionellen oder zeichenhaften Ansatzes. Die vorgegebenen Außenkanten der Figur sind grundsätzlich einzuhalten, können aber konzeptabhängig durch Rücksprünge und Substraktion variiert werden. Eventuelle Vorsprünge (Balkone oder ähnliche Bauteile) dürfen bis zu 2 m über die Umhüllungsfläche heraustreten. Der Typus muss aber weiterhin erkennbar bleiben.








