Bachelorthesis | Gutenberg-Museum Mainz
Sommer 2022 | 8. Fachsemester
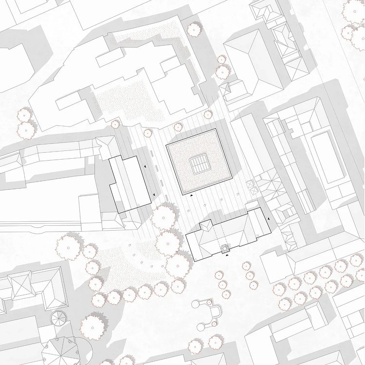
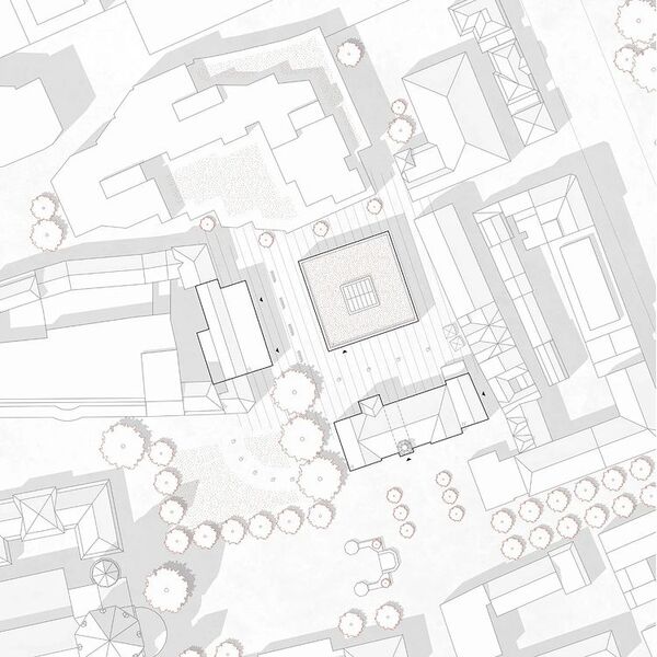
Das Gutenberg-Museum in Mainz ist eines der ältesten Druck- und Schriftmuseen der Welt. Es wurde bereits anlässlich des 500. Geburtstags von Johannes Gutenberg gegründet und befindet sich seit 1926 in prominenter Lage am Liebfrauenplatz gegenüber des Mainzer Doms. Mit der Zeit und einer wachsenden Sammlung entwickelte sich das Museum zu einem Ensemble aus dem Renaissancegebäude "Zum Römischen Kaiser" und zwei Erweiterungsbauten von 1962 und 2000.
Nach einem gescheiterten Wettbewerb für den Umbau des Museums gilt es nun, dieses am bisherigen Standort neu zu bauen. Dabei soll die bestehende bauliche Situation neu definiert und die historischen Gebäude sowie die Erweiterung aus dem Jahr 2000 berücksichtigt und eingebunden werden.





